Home
Immobilien
Über uns
Service
Ansprechpartner
Kontakt
Home
Immobilien
Über uns
Service
Ansprechpartner
Kontakt
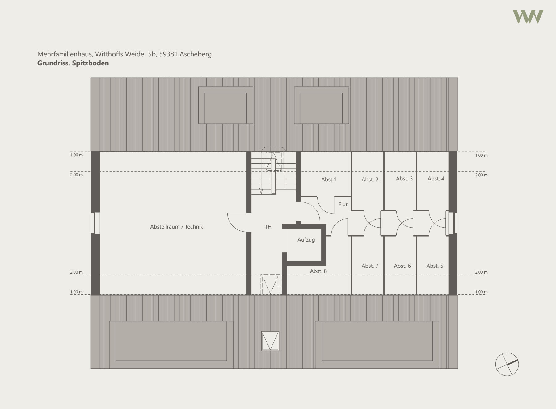
SPITZBODEN
KONTAKT
Ob Interessent oder Bauträger – wir sind für Sie da.